Zentrale, ruhige ETW in gepflegtem Wohnhaus – ideal für Eigennutzer

13407 Berlin, Etagenwohnung zum Kauf

Kontaktdaten

Objektdaten

  • Objekt ID
    HO37
  • Objekttypen
    Etagenwohnung, Wohnung
  • Adresse
    (Reinickendorf)
    13407 Berlin
    Berlin
  • Lage
    Wohngebiet
  • Etage
    1
  • Etagen im Haus
    7
  • Lage im Gebäude
    vorne vorne
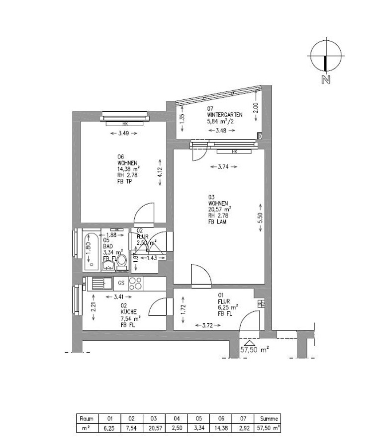
  • Wohnfläche ca.
    57,94 m²
  • Zimmer
    2
  • Badezimmer
    1
  • Balkone
    1
  • Heizungsart
    Zentralheizung
  • Wesentlicher Energieträger
    Öl
  • Baujahr
    1961
  • Zustand
    gepflegt
  • Ausstattung
    Standard
  • Bauweise
    Massiv
  • Stellplatz
    1 Stellplatz
  • Käufer­provision
    3,57 % inkl. MwSt.
  • Hausgeld
    321 EUR
  • Kaufpreis
    230.000 EUR

Ausstattung / Merkmale

  • ✓ Abstellraum
  • ✓ Altbau
  • ✓ Außenstellplatz
  • ✓ Badewanne
  • ✓ Balkon
  • ✓ Einbauküche
  • ✓ Fliesenboden
  • ✓ Keller
  • ✓ Laminatboden
  • ✓ Massivbauweise
  • ✓ Personenaufzug
  • ✓ Tageslichtbad

Objekt­beschreibung

Beschreibung

Die beiden wirtschaftlichen Einheiten sind von einer weitläufigen Grünanlage mit drei Parkplätzen umgeben.
Die Heizung des Wohnhauses wurde in ca. 2018 erneuert ebenso wie die beiden Flachdächer. Es erfolgten Strangsanierungen sowie Renovierungen der Treppenhäuser. Die Sanierung des Fahrstuhls ist von der Gemeinschaft beschlossen, ist jedoch noch nicht durchgeführt. Die Finanzierung erfolgt aus der Instandhaltungsrücklage.

Ausstattung

Beim Betreten der Wohnung empfängt Sie ein großzügiger Flur, der ausreichend Platz für eine Garderobe bietet und einen einladenden ersten Eindruck vermittelt.
Linkerhand befindet sich die Küche, ausgestattet mit einer Einbauküche. Ein großes Fenster sorgt für angenehmes Tageslicht, während der geflieste Boden und die stilvollen Backstein-Riemchen als Küchenrückwand dem Raum eine ansprechende, rustikal-moderne Note verleihen.
Geradezu gelangen Sie durch einen kleinen Flur in das helle Wohnzimmer mit gepflegtem Laminatboden. Von hier aus haben Sie direkten Zugang zum angrenzenden Wintergarten – einem idealen Ort, um den Tag entspannt ausklingen zu lassen. Ob als gemütliche Leseecke, Platz für Ihre Pflanzen oder als Rückzugsort für eine kleine Auszeit: Der Wintergarten lädt zum Verweilen ein. Er ist nicht beheizt, verfügt jedoch über Stromanschlüsse, sodass bei Bedarf eine elektrische Beheizung möglich ist. Der Teppichboden sorgt zusätzlich für ein behagliches Ambiente.
Aus dem Vorraum erreichen Sie sowohl das ruhig gelegene Schlafzimmer als auch das Badezimmer. Das Bad ist neutral gefliest und mit einer Badewanne, einem Stand-WC sowie blickdichten Fenstern ausgestattet, die angenehme Privatsphäre gewährleisten.
Ein praktischer Abstellraum mit Waschmaschinenanschluss bietet zusätzlichen Stauraum. Sämtliche Räume sind mit hochwertigen Aluminium-Schallschutzfenstern versehen, die für ein ruhiges und angenehmes Wohngefühl sorgen.
Mit wenigen Handgriffen schaffen Sie sich hier Ihr ganz persönliches Wohlfühlzuhause.

Lage

Die gut geschnittene Eigentumswohnung befindet sich im 1. Obergeschoss des gepflegten Mehrfamilienhauses im grünen Bezirk Reinickendorf. Der gesamte Wohnkomplex besteht aus zwei Häusern zu je 49 Einheiten. Die Anlage wurde 1961 erbaut und steht unter Denkmalschutz. Sie wohnen hier sehr zentral und doch ruhig. Für die kleinen Dinge des täglichen Bedarfs finden Sie ein kleines Edeka in unmittelbarer Nähe. Fußläufig sind Sie in ca. 10 Minuten am U-Bahnhof Afrikanische Straße. Mit der U6 verfügen Sie über eine direkte Anbindung zur Friedrichstraße. In nur wenigen Minuten erreichen Sie mit dem Auto oder den öffentlichen Verkehrsmitteln diverse Einkaufsmöglichkeiten, z. B. das Einkaufszentrum „Der Clou“ am Kurt-Schuhmacher-Platz oder die Einkaufsmeile „Müllerstraße“.

Die dargestellte Position der Immobilie ist nur eine ungefähre Angabe.

Direktanfrage

* Pflichtangaben
 SSL-verschlüsselt
Telefonisch erreichbar:

Täglich von 09:00 – 20:00 Uhr

Bürozeiten:

Montag 15:00–18:00
Dienstag 10:00–13:00
Mittwoch Geschlossen
Donnerstag 15:00–19:00
Freitag 10:00–13:00

Kontaktformular

Hier können Sie bequem mit mir in Kontakt treten